Få mer information och se de senaste erbjudandena direkt på vår hemsida.
This exceptional office property, located in the vibrant and historic Old Town of Limassol, offers a unique opportunity for investors or businesses seeking a prime location in the city center. Featuring a combination of a charming listed building and new construction, this space blends historical character with modern functionality.
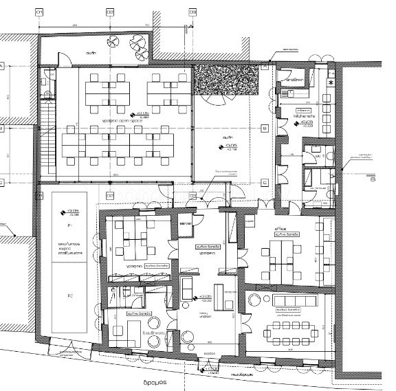
Key Features:
Plot Size: 427m
Existing Listed Building: 213m
New Construction: 172m
Total Covered Area: 385m
Rooftop Area: 86m
Parking: 2 Dedicated Parking Spaces
The property is ideally located in the heart of Limassols bustling city center, within walking distance of essential amenities, including:
Shops
Restaurants
Pharmacies
Limassol Marina
The Sea Front
The office space also benefits from easy access to the highway, making it convenient for both local and international businesses.
Architecture & Design
The architectural plans for the property are ready, offering a modern and functional layout that maximizes the available space while preserving the charm and character of the listed building. The design includes a spacious rooftop area, perfect for hosting meetings, events, or simply enjoying the city views.
1. What is the zoning of the property?
The property is zoned for mixed-use, making it ideal for office, retail, or commercial purposes. The listed building provides an additional layer of character and historical value to the space.
2. What is the total size of the office space?
The total covered area is 385m, which includes both the existing listed building and the new construction, as well as an additional 86m rooftop area.
3. Is the building serviced with utilities?
Yes, the property is fully serviced, including water, electricity, internet access, and modern HVAC systems to ensure a comfortable working environment.
4. Can I modify the architectural plans?
Modifications to the approved plans may be possible but would need to be approved by local authorities, especially considering the listed status of part of the building. A consultation with an architect or urban planner is recommended for any changes.
5. How many parking spaces are available?
The property includes 2 dedicated parking spaces, offering convenience for employees or visitors.
6. What are the nearby amenities?
This office is within walking distance to a wide variety of amenities, including:
Shops, cafes, and restaurants
Pharmacies and supermarkets
Limassol Marina and the Sea Front
Public transportation options
7. How far is the property from the highway?
The property is easily accessible from the highway, providing quick and convenient routes to the rest of the city and beyond.
8. Is the building fully renovated?
The listed building has been carefully restored and preserved, while the new construction has been designed with modern standards of comfort and efficiency. The space offers the best of both worlds historical charm with contemporary functionality.
If you're looking for a stylish office space in one of the most desirable locations in Limassol, this is an incredible opportunity. Contact us today to learn more or arrange a viewing.
Certifiering pågår.
Få mer information och se de senaste erbjudandena direkt på vår hemsida.
Få mer information och se de senaste erbjudandena direkt på vår hemsida.
Få mer information och se de senaste erbjudandena direkt på vår hemsida.
Få mer information och se de senaste erbjudandena direkt på vår hemsida.
Få mer information och se de senaste erbjudandena direkt på vår hemsida.
Få mer information och se de senaste erbjudandena direkt på vår hemsida.
Få mer information och se de senaste erbjudandena direkt på vår hemsida.
Få mer information och se de senaste erbjudandena direkt på vår hemsida.
Få mer information och se de senaste erbjudandena direkt på vår hemsida.
Få mer information och se de senaste erbjudandena direkt på vår hemsida.
Få mer information och se de senaste erbjudandena direkt på vår hemsida.
Få mer information och se de senaste erbjudandena direkt på vår hemsida.
Detta objekt annonseras av Blue Sky Properties (R.N. 488, L.N. 344/E). Vi ber alla annonsörer att lämna korrekta uppgifter, men vi kontrollerar inte den information som tillhandahålls av annonsören och vi kan inte hållas ansvariga för eventuella felaktigheter. Vi rekommenderar att du söker oberoende juridisk rådgivning innan du förvärvar en fastighet.